
Mittestandardne kohandatud J-polt
J-tüüp on kindla voolavuspiiriga sirgete ja painutatud, peaga ja peata ankrupoltide standardspetsifikatsioon.
Leite Fasteners on üks suuremaid eri klasside ja viimistlusega ankrupoltide J tootjaid.
4. J-poldid on J-kujulised kinnitused, mis on lameda poolega keermestatud. Neid kasutatakse sageli konstruktsioonilistes rakendustes, nagu seinte kinnitamine betoonvundamentidele.
Painutatud ots haakub toestamiseks ümber armatuuri ja selle võib ankrupoldina kasutamiseks valada betooni.
■TOOTE PARAMEETER
|
Toote nimi |
Mittestandardne kohandatud J-polt |
Kaubamärk |
Leite |
|
Tugevusklass |
4.8, 5.6, 5.8, 6.8, 8.8, 9.8, 10.9, 12.9 |
Keerme tüüp |
Jäme niit / osaline niit |
|
Pinnatöötlus |
Tavaline, must oksiid, tsingitud, kuumtsingitud, oksüdatsioon, Dacromet jne. |
Kasutamise eesmärk |
Standardne, kuumakindlus, kõrge tugevus, kulumiskindlus, keemiline vastupidavus |
|
Materjal |
Süsinikteras, 304 roostevaba teras, 316 roostevaba teras, vask, alumiinium |
Juhtimisaeg |
30 kuni 60 päeva |
■TOOTE OMADUS JA RAKENDUS
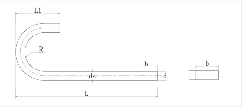
1. Konstruktsiooni omadused: J-poldi kuju sarnaneb tähega "J", üks ots on keermestatud, üks ots on silindriline ja ots on kõvera konksuga. See disain mitte ainult ei hõlbusta paigaldamist ja ühendamist, vaid suurendab ka tõhusat betooniga ankurdamist ja parandab üldist stabiilsust.
2.Materiaalne eelis: J-poldid on üldiselt valmistatud kvaliteetsest süsinikterasest või Q235 terasest, millel on korrosiooni- ja kulumiskindluse omadused ning mis taluvad karmi keskkonnatingimusi, et tagada pikaajaline stabiilne jõudlus.
3. Lai kasutusala: J-poldid sobivad mitmesuguste arhitektuursete kujunduste jaoks, sealhulgas teraskonstruktsioonide, terasraamide, terasplaatide jms kinnitamiseks. Seda saab kasutada terastalade ja betoondetailide ühendamiseks ning seda saab kasutada ka ühendada teraskonstruktsioonid erinevate insenerivajaduste rahuldamiseks.
4. Tugev kandevõime: kuigi J-poldid sobivad tavaliselt väiksemat koormust kandvate postide ja tornide jaoks, võib see tänu oma painutatud konksukonstruktsioonile siiski teatud määral suurendada poltide ja betooni vahelise ühenduse tugevust, parandades üldist kandevõimet .



■TOOTE ANDMED

■TOOTE KVALIFIKATSIOON
Riistvaratoodete testimine on kõikehõlmav ja teaduslik protsess, mille eesmärk on tagada toote kõrgeim kvaliteet ja ohutus. Läbi range testimisprotsessi saab tagada, et riistvaratooted vastavad kasutamise ajal klientide ootustele ja nõuetele.

Tuvastamisprotsess
Ülevaatusseadmete kalibreerimine Välimuse kontroll Suuruse kontroll Funktsioonikatse Tulemuse otsus Salvestusaruanne
■MIKS VALIDA MEID

Kulude kontroll – Ettevõte on kulude kontrollimisel hästi toiminud ja saavutanud tootekulude vähendamise, optimeerides tootmisprotsesse, vähendades toorainekulusid ja parandades tootmise efektiivsust, et pakkuda turul konkurentsivõimelisi hindu.
Kvaliteedikontroll – Ettevõte teostab ranget kvaliteedikontrolli igal lingil alates tooraine hankimisest kuni toote saatmiseni, et tagada toodete vastavus klientide nõuetele ja tööstusstandarditele.
Tarnekontroll – arenenud logistikajuhtimissüsteem ja ettevõttele kuuluvad ekspedeerijad võimaldavad ettevõtetel paremini mõista kaubavedude olukorda, õigeaegselt kohandada transpordiplaane ja tagada toodete õigeaegne tarnimine klientidele.
■KKK
Q:Mis on J-polt?
V: J-polt on kindla kujuga polt, mis sarnaneb tähega "J", mille üks ots on keermestatud ja teine silindriline ning mille otsas on tavaliselt kõver konks. See kuulub omamoodi ankurpoltide hulka, mida kasutatakse peamiselt terastalade ja betoondetailide ühendamiseks, samuti teraskonstruktsioonide ühendamiseks.
Q:Millised on J-poltide peamised kasutusvaldkonnad?
V: J-polte kasutatakse laialdaselt kaevanduses, terases, elektrienergia, raudteede, maanteede, sildade, tornkraanade, pikaajaliste teraskonstruktsioonide ning suurte hoonete ja muu infrastruktuuri valdkonnas. Seda kasutatakse aluse ja vundamendi külge kinnitatavate seadmete ühenduspoldina ning see täidab seadmete kinnitamise rolli betoonvundamendile.
Q:Millised on J-poltide olulised omadused?
V: J-poldi peamised omadused hõlmavad tugevat kandevõimet, head korrosioonikindlust, mugavat paigaldamist ja nii edasi. Konksu disain suurendab betooniga ühenduse tugevust ja parandab üldist stabiilsust. Samal ajal on J-poldid valmistatud kvaliteetsetest materjalidest, nagu süsinikteras või Q235 teras, mis taluvad karmi keskkonnatingimusi ja tagavad pikaajalise stabiilse töö.
Q:Millised on J-poltide eelised võrreldes teist tüüpi poltidega?
V: Võrreldes teist tüüpi poltidega on J-poltidel ainulaadne painutatud konks, mis võimaldab neil paigaldamisel pakkuda täiendavat hoidejõudu, suurendades ühenduse stabiilsust. Lisaks on J-poldid tavaliselt valmistatud korrosiooni- ja kulumiskindlatest materjalidest, mis säilitavad stabiilse jõudluse karmides keskkonnatingimustes. Samal ajal muudavad selle lai valik rakendusi ja mugav paigaldusprotsess populaarseks kinnitusdetailide valikuks.
Kuum tags: mittestandardsed kohandatud j-poldid, Hiina mittestandardsed kohandatud j-poltide tootjad, tarnijad, tehas
You Might Also Like
Küsi pakkumist
Küsi hinnapakkumist
* tähistab nõutavat välja.
Leite edu ei tulene ainult meie toodete laialdasest kasutusestvaid ka meie toodete kõrgetest standarditest.LEITE töötajad pooldavad tihedat koostööd, et tootmisliin saaks esimest korda klientide ja inseneride ideid ning Leite turule pääsevad tooted oleksid kvaliteetsed.
Palun saatke meile oma nõuded e-posti teel. Ootame teie mittesiduvat päringut!


